We used Gemini to visualize our completed home renovation
The speed with which Nano Banana provided value was eye-opening.
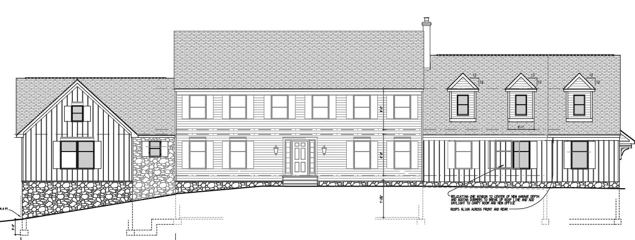
We’re beginning a fairly large renovation and addition project on our home. It’s large enough that we’re also going to replace all of the existing siding which means we have to make decisions about siding style & color, stone veneer style & color, shutter style & color, etc.
This is an approximate replay of the chat with Gemini (Nano Banana).
NB: Gemini mistook a window relocation in the drawing for a double window. I didn’t bother correcting it at the time since we were focused on colors mostly. It also wasn’t sure whether the chimney existed or not.
Create a realistic 3d render of this front elevation. use white for the horizontal and vertical siding, dark grey for the roof, and a mix of brown river stone for the stone veneer
oh right, shutters.
make the shutters black and the front door a dark red
seeing the house in 3D makes it so much easier to think about design choices. and, we didn’t need to go back and forth with a designer or architect to iterate quickly on it
make the siding forest green
meh
try sage green instead
not bad… not sure we like that better than white. not sure about the stone
generate a grid of different stone options that would work with the sage green siding
I thought this was pretty clever - it understood the value in having a siding sample alongside stone veneer options. Would’ve been even more impressive if it weaved the siding in between each row and column of stone options…
recreate this stone comparison grid but have the herringbone color siding run in between each row and column of the stone grid
close enough… we’re now leaning back towards something close to white for the siding and probably a fieldstone for the veneer. let’s try some out
now go back to the house render, give me a grid of 6 different shades of white or near white colors for the siding. stick with the type of stone in this image for the stone veneer
pretty handy - we’re narrowing in on what type of white we like. still not sure about the stone
generate a bunch of stone veneer options that go with this white siding color
now we’re thinking about how much of this stone is going to be visible once we do landscaping…
add some landscaping
wow! it seemed to understand the placement of various heights of bushes. the shadows are a nice touch. bit odd that it decided our house should have a front walkway but can’t say we dislike the look. let’s get a closer view
generate a larger version of the top right render in the grid - no landscaping straight out from the front door
nice…















Such a cool concept. I dream of one day doing a renovation. Your family is an inspiration
I don’t know what a veneer option is but I did learn about a stone siding. I love the ivory and dark brown/ivory options.